HONKA-HEIMON KYLÄSSÄ
Pitkäaikaiset haaveet kävivät toteen, kun kuopiolaiset Riikka ja Niko Ulmanen pääsivät kuukausi sitten muuttamaan itse rakentamaansa moderniin hirsiomakotitaloon lähelle luonnon rauhaa. Honkarakenteen suosikkitalomalli Pyry muuntautui suunnittelijan käsittelyssä pariskunnan unelmakodiksi. Rauhassa harkiten hirsikodissa päädyttiinkin lopulta täyden kympin ratkaisuihin. Tervetuloa tutustumaan virtuaalikierrokselle juuri valmistuneeseen Honka Pyry -hirsitaloon!
Pariskunta alkoi unelmoida hirsiomakotitalosta jo 10 vuotta sitten ja he kävivät useammassa Honkarakenteen paikallisessa hirsitaloesittelyssä ennen kuin rakentamisesta tuli edes ajankohtaista. Tonttikin valikoi lopulta yli 50 kandidaatin joukosta. Talon rakennusprojekti oli parin ensimmäinen ja se sujui kokonaisuudessaan yllättävän mallikkaasti vakitöiden ohella – molempien perheiden tuki oli korvaamaton apu elämän isoimmassa projektissa.
Astu peremmälle – kokeile 360° virtuaaliesittelyä!


Hirsi tuntui ainoalta oikealta ratkaisulta omakotitaloon
Ulmaset olivat vuosia sitten päättäneet, että jos he joskus omakotitalon rakentavat, materiaalina on sitten hirsi. Pariskunta halusi nimittäin mahdollisimman terveen talon:
”Järjelläkin ajatellen hirsitalo tuntuu terveellisimmältä ja turvallisimmalta vaihtoehdolta, kun seinämateriaalina on pelkkä puu. Ei tarvita turhia kerroksia muovia ja villaa. Jos ei olisi ollut rahaa hirsitaloon, emme olisi rakentaneet omakotitaloa ollenkaan.”
Niko Ulmanen, asiakas


Honkarakenteella on Kuopiossa vahva asema paikallisten tapahtumien vuoksi ja pariskunta menikin ensimmäisenä Honka-edustaja Jukka Musakan pakeille. Jukan järjestämässä Vinkki-illassa ideointi pääsi vauhtiin ja suunnittelija Risto Ruuskanen piirsi ajatukset paperille. Ulmaset haaveilivat ensin Honkarakenteen Mambo-mallista, mutta se osoittautui pariskunnalle liian kalliiksi. Onneksi juuri ilmestynyt Pyry-malli oli kustannustehokkaampi vaihtoehto ja siinä oli ainekset pariskunnan unelmien omakotitaloksi.
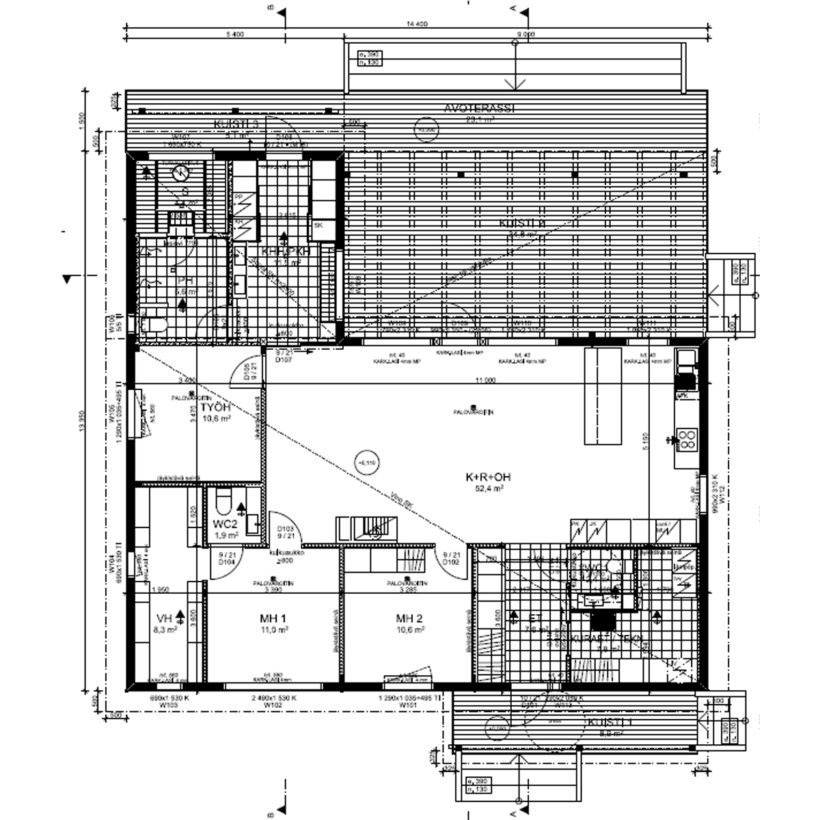
Pohjaratkaisu muokattiin vastaamaan pariskunnan tarpeita
Ulmaset toivoivat L-mallista taloa, joka Pyry-talomallissa jo toteutuikin. Talomallissa oli alun perin neljä makuuhuonetta, mutta pariskunta halusi, että päämakuuhuoneessa olisi pääsy sekä vessaan että vaatehuoneeseen. Näin ollen pohjapiirroksesta otettiin yksi makuuhuone pois, jotta lisäratkaisuille saatiin tilaa.
Vaatimuksena omakotitalolle oli myös, että olohuone ja sen yhteydessä oleva keittiö ovat mahdollisimman isoja, mikä Pyry-mallissa jo valmiina olikin. Ulmaset halusivat yhdistää kuraeteisen ja teknisen tilan, sillä he eivät halunneet kahta sisäänkäyntiä. Toiveiden mukaan L-sakara jäi pesutilalle ja saunalle. Omakotitalon lisäksi pariskunta rakensi pihapiiriin ison 105-neliön autotallin ja pihasaunan, johon saatiin myös yksi lisämakuuhuone. Talosta tuli toiveiden mukaan erittäin toimiva ja kaunis, pitkäaikainen koti.
Rakentaminen lujitti parisuhdetta entisestään
Rakennusprojektissa haastavinta oli lopulta talon perustusten teko. Ulmaset olivat alkujaan sopineet ammattilaisen kanssa pohjien teosta, mutta he eivät päässeet sopuun hinnasta ja pariskunta päätti itse tehdä perustukset. Nämä ensimmäiset kaksi viikkoa olivatkin rakennusprojektin haastavinta aikaa, mutta siitäkin pariskunta selvisi yhdessä Nikon isän avulla joka muutenkin oli korvaamaton apu koko projektin ajan.

Ulmaset tekivät muuten kaiken itse, mutta Honkarakenteelta he tilasivat hirsirungon L- pystytyspalvelun. Siinä (nk. vesikattovalmius) talo rakennetaan valmiin perustuksen päältä ulkoa päin valmiiksi. Palveluun sisältyy lisäksi ikkunoiden sekä kuistien rakenteiden asennus rakennekuvien mukaan. Rakennusprojekti sujuikin perustusten jälkeen yllättävän mutkattomasti ja Niko olisi valmis rakentamaan talon joskus uudelleenkin.
”Nikolla on aina ollut haave, että rakentaisi talon itse ja kyllä se kannattikin. Oli myös iso säästö tehdä itse. Vaikka rakennusprojekti oli välillä rankkaakin, syntyi siitä paljon hauskoja yhteisiä muistoja. Moni pelotteli, että rakentaminen tuo haasteita parisuhteeseen, mutta meillä se tuntui vain lujittavan yhteiseloa.”
Riikka Ulmanen, asiakas


Täyden kympin hirsitalo
Riikka ja Niko ovat ylpeitä lopputuloksesta ja arvioivat nyt, että se on täyden kympin arvoinen omakotitalo. Nyt pariskunnalla on pitkäaikainen koti, jossa voi juhlistaa elämää ja kutsua läheisiä kylään. Pariskunta on asunut hirsitalossa kuukauden päivät ja se on tuntunut ”ihan parhaalta”. Ison uurastuksen jälkeen kodin lempipaikaksi on muodostunut TV-huoneen sohva ja persoonallisesti toteutettu saunaosasto.


”Onhan tämä ulkonäöllisesti ja sisustuksellisesti upea. Ja kun on itse tehnyt, niin on voinut hifistellä yksityiskohtien kanssa. En osaa edes sanoa, mitä tekisin toisin.”
Niko Ulmanen, asiakas
Talofaktat:
- Talotyyppi: omakotitalo
- Kerrosala: 151 m2
- Huoneistoala: 139,5 m2
- Kokoonpano: 3h, k+oh+rt, ph+s, khh/pkh, 2 wc, vh
- Hirsi: Honkarakenteen lamellihirsi FXL 204 mm
- Ulkoseinän sävy: Teknos Visa premium, sävyt: Korppi d129, Pyry q854
- Sisäseinien sävy: mh1: Uskudar X386 mh2: Talkki G484, työh: Mantteli M499. Muut tilat: Maalarinvalkoinen T1724 ja hirsikäsittely: Saunasuoja väritön
- Keittiökalusteet: Ikea
- Rakentamisvuosi: 2019-2020
- Paikka: Kuopio
- Honka ID: 32525
Lataa tai tilaa Kotikirja
suunnittelun avuksi
Honka Kotikirja tarjoaa sinulle inspiroivia ideoita ja tietoa, kun suunnittelet oman kodin rakentamista.

Tutustu kustannustehokkaisiin omakotitalomalleihin
Valmiiksi suunniteltu hirsitalomalli eli mallistomalli on kustannustehokas vaihtoehto oman hirsitalon toteuttamiseksi. Mallistossa mukana myös Honka Pyry, joka on Rakentaja.fi:n Unelmien koti 2019 -äänestyksen voittaja!
Tutustu mallistoon#honkafamily Instagramissa ja raksablogeissa
Ota omiin suunnitelmiisi vauhtia ja vinkkejä muiden kokemuksista. Seuraa Honka-rakentajien blogeja ja Honka-vaikuttajia, ihastu Honka-rakentajien Instagram-tileihin ja lue mielenkiintoisia talotarinoita!
Inspiroidu